フレームレス天井点検口 320×320 天井材 9.5mm用(天井専用・ホワイト)
販売価格: 4,960円(税別) [通常販売価格: 6,200円]
(税込: 5,456円)
商品詳細
天井の美観を追求したい現場におすすめのフレームレス天井点検口。枠が見えないスッキリ納まりで、同じ底目地仕様のMJK型(壁付専用)点検口と合わせて使えば、空間全体の統一感も実現できます。
- ABS樹脂+PVC樹脂+4方マグネットで高強度&施工性抜群
- クロス巻き込みタイプで、枠が見えない美しい仕上がり
- 定規枠・落下防止ヒモ付き(ビス別売)
- 天井材9.5mm厚に対応
- プロ現場での規格寸法品(特注不可)
- クロス接着は「プラゾールSS」または「ボンドSP210N」を推奨
カタログページを見る


商品仕様
| 材質 | ABS樹脂+PVC樹脂+マグネット(4方) |
|---|---|
| カラー | 単色:ホワイト |
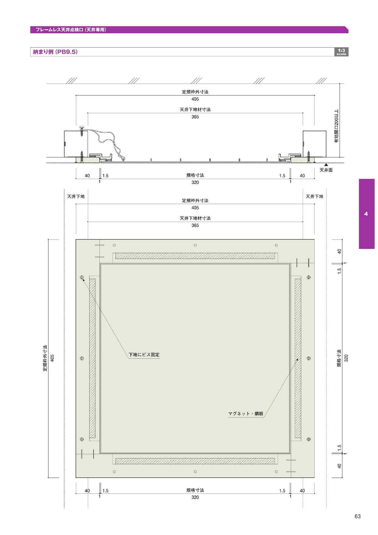
| 寸法 | 本体サイズ:320×320mm 定規枠外寸法 405×405mm |
| 定尺(長さ) | 320×320mm(規格寸法のみ) |
| 梱包数(/梱包) | 15台 |
| 加工対応 | 加工・特注不可(規格品のみ) |
| バラ出荷可否 | 1台から発送可能 |
| 適用PB厚 | 天井材9.5mm専用 |
| 用途 | 天井点検口(枠無し美観仕上げ用) |
| 特長 | 枠が見えない・クロス巻き込み・高強度樹脂・4方マグネット |
| 対応建物 | 集合住宅、ホテル、公共施設、店舗、住宅等 |
| 備考 | 定規枠・落下防止ヒモ付属/取付ビス別売/クロス接着剤指定あり(プラゾールSS・ボンドSP210N)/MJK型点検口と組合せで統一感UP |